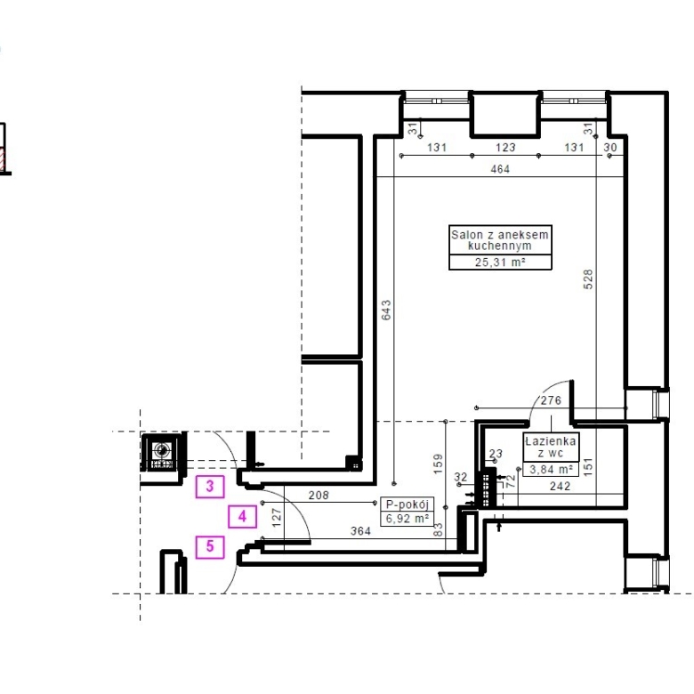
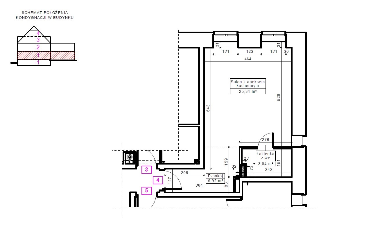
Mieszkanie nr 4 to nowoczesne studio, które zostało wykończone jako przestrzeń otwarta. Obszerny salon posiada ekspozycję na dwa kierunki świata oraz trzy duże okna, pozwala więc na dowolną aranżację i podział według preferencji Klienta. Dostępu do lokalu strzegą drewniane i eleganckie drzwi antywłamaniowe. Na wprost znajduje wnęka stworzona z myślą o szafie na okrycia wierzchnie, natomiast po lewej część przygotowana pod aneks kuchenny, w której zapewniono podejścia pod zlewozmywak i zmywarkę, płytę kuchenną i piekarnik oraz lodówkę. Za prawidłowy klimat wnętrza odpowiada wentylacja mechaniczna. Dodatkowo zapewniono osobny kanał do montażu okapu kuchennego. W łazience przygotowano podejście pod kabinę prysznicową oraz zainstalowano duży grzejnik z miejscem na ręczniki kąpielowe.
W standardzie ściany łazienki pozostawiono jako zatarte na ostro, natomiast pozostałe ściany i wszystkie sufity zostały wyszpachlowane gładzią gipsową oraz pomalowane farbą, kolorem białym. Instalacja elektryczna, obejmująca domofon zaopatrzona jest w gniazda i włączniki o klasycznym wyglądzie. Do mieszkania doprowadzono przewody pozwalające na odbiór cyfrowej telewizji naziemnej, kablowej i satelitarnej, a przede wszystkim szybkiego Internetu, gdyż budynek posiada przyłącze światłowodowe. Dalsze nowinki to ciepłomierze i liczniki wyposażone w bezprzewodowy odczyt zdalny. Stolarka okienna szklona jest trzyszybowo i wyposażona higrosterowalne nawiewniki okienne.
Do mieszkania przynależy komórka lokatorska, w cenie 3 900 zł/m2.