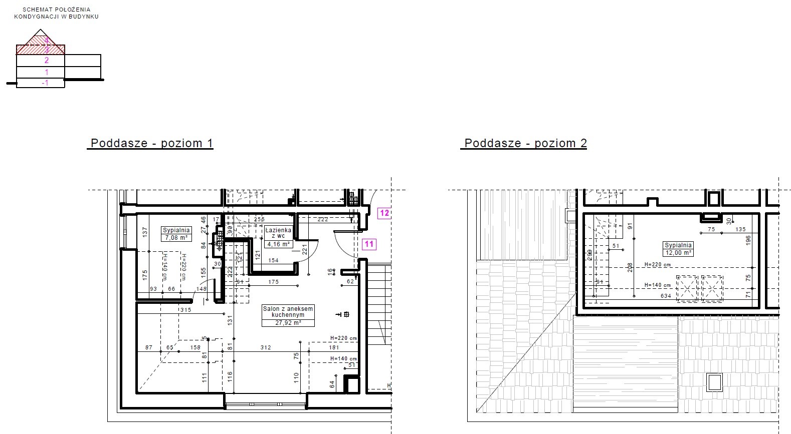
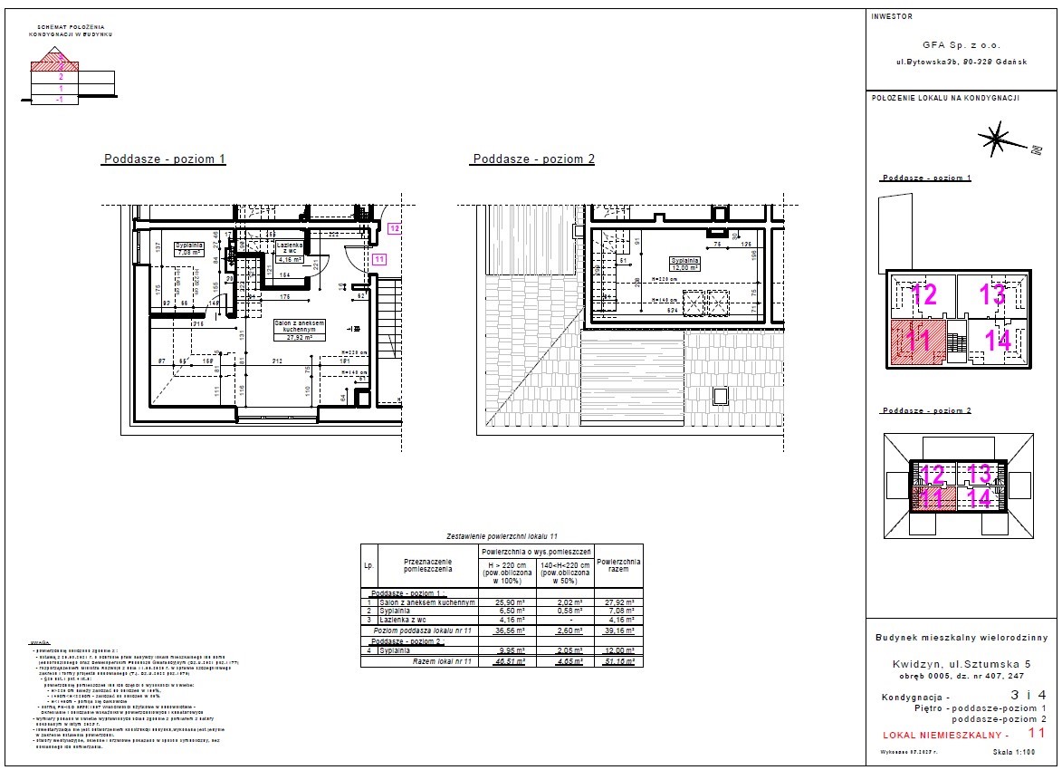
Dwupoziomowe mieszkanie nr 11 posiada ekspozycję południowo-wschodnią. Poziom pierwszy to bardzo przestronny salon, sypialnia małżeńska oraz łazienka. Poziom drugi natomiast został wykończony jako przestrzeń otwarta, która nadaje się do dowolnej aranżacji przez nowego Właściciela. Przestrzeń reprezentacyjna, do której prowadzą drewniane i eleganckie drzwi antywłamaniowe, została wysunięta na pierwszy plan. Salon o wysokości ponad trzech metrów wypełniony jest dziennym światłem z trzech dużych okien. Po prawej stronie drzwi znajduje się miejsce dla dużej szafy na okrycia wierzchnie. W części przygotowanej pod aneks kuchenny, zapewniono podejścia pod zlewozmywak i zmywarkę, płytę kuchenną i piekarnik oraz lodówkę. Za prawidłowy klimat wnętrza odpowiada wentylacja mechaniczna. Dodatkowo zapewniono osobny kanał do montażu okapu kuchennego. Atutem lokalu jest przestronna łazienka przygotowana pod aranżację z obszerną kabiną prysznicową, w której też zainstalowano duży grzejnik z miejscem na ręczniki kąpielowe.
W standardzie ściany łazienki pozostawiono jako zatarte na ostro, natomiast pozostałe ściany i wszystkie sufity zostały wyszpachlowane gładzią gipsową oraz pomalowane farbą, kolorem białym. Instalacja elektryczna, obejmująca domofon zaopatrzona jest w gniazda i włączniki o klasycznym wyglądzie. Do mieszkania doprowadzono przewody pozwalające na odbiór cyfrowej telewizji naziemnej, kablowej i satelitarnej, a przede wszystkim szybkiego Internetu, gdyż budynek posiada przyłącze światłowodowe. Dalsze nowinki to ciepłomierze i liczniki wyposażone w bezprzewodowy odczyt zdalny. Stolarka okienna szklona jest trzyszybowo i wyposażona higrosterowalne nawiewniki okienne. Drewniane okna dachowe wyposażono w podwyższoną oś obrotu, która pozwala na wygodne korzystanie z przestrzeni wnętrza jak i swobodne podziwianie widoków z najwyższego punktu budynku.
Do mieszkania przynależy komórka lokatorska, w cenie 3 900 zł/m2.